Integriertes Klimaanpassungskonzept
Freising, Deutschland
- Auftraggeber:innen
- Stadt Freising - Stadtplanung und Umwelt
- Ansprechpartner:innen
- Andrea Brandl - Stadtplanung und Umwelt
- Projektpartner:innen
- GEO-NET Umweltconsulting GmbH, wgf Landschaft GmbH, Ingenieurgesellschaft Prof. Dr. Sieker mbH
- Leistungen
- Rahmenplan, Städtebauliches Konzept, Strategie Klimaanpassung / Starkregen, Öffentlichkeitsbeteiligung
- Art des Auftrags
- Bearbeitung nach Bewerbungsverfahren
- Bearbeitungszeitraum
- Mai 2021 bis Oktober 2022
Die Stadt Freising hat mit dem Klimaanpassungskonzept KLAPS50 eine Planung aufgestellt, die die Leitplanken für eine nachhaltige Stadtentwicklung aufzeigt. Bereits heute sind die Auswirkungen des Klimawandels in Freising spürbar – etwa in der hitzebelasteten Altstadt mit dem historischen Domberg oder in den nördlichen Stadtvierteln mit einer immer häufiger werdenden Starkregengefährdung.
Das Klimaanpassungskonzept entstand in Zusammenarbeit mit bgmr Landschaftsarchitekten, Geo-NET (Themenfeld Hitze) und Sieker (Themenfeld Wasser).
Klimaanpassung funktioniert durch gesamtstädtische Leitplanken
Auf gesamtstädtischer Maßstabsebene formulieren Konzeptpläne in verschiedenen Themenfeldern den Weg zur klimaangepassten Stadt Freising. Welche Bereiche sind für die Versorgung der Stadt mit nächtlicher Kaltluft besonders wichtig und daher sensibel zu beplanen? Wie kann der Zugang zu Hitzeentlastung, also in große und kleine Grünräume verbessert werden? Wo gilt es, die potenzielle Gefährdung durch Starkregenereignisse zu minimieren?
Es werden jeweils Querschnitts-Ansätze formuliert, die das Handlungsfeld Hitze als auch das Handlungsfeld Wasser berücksichtigen.
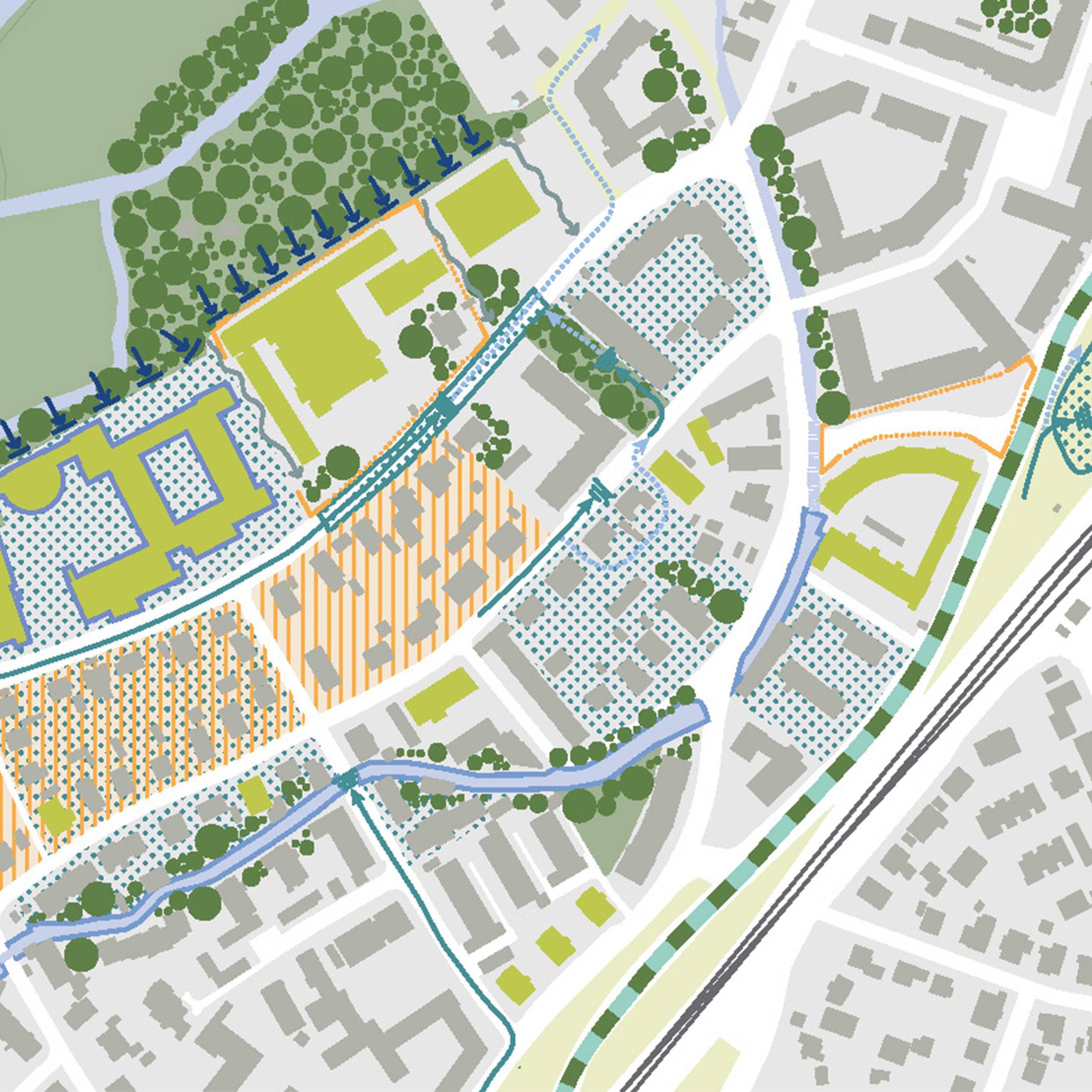
Wassersensibler Umbau in Vertiefungsbereichen
Die Maßnahmenansätze werden hinsichtlich ihrer Anwendbarkeit an konkreten Stadträumen getestet. So wird aufgezeigt, wie das Konzept in vielen ohnehin anstehenden Planungen angewendet und umgesetzt, gewissermaßen angedockt werden kann.
Die Maßnahmen in den unterschiedlichen Stadträumen umfassen beispielsweise kaskadenartige Retentionsflächen, Sickerbeete, entsiegelte und teilentsiegelte Flächen sowie Gräser- und Baumpflanzungen. Somit entsteht durch Beschattung und Verdunstung ein kühler Stadtraum, der gleichzeitig Niederschlagswasser zurückhalten und schadfrei ableiten kann.
Umsetzungsstrategien für die Klimaanpassung
Der Aktionsplan für das Klimaanpassungskonzept in Freising stellt das zentrale Instrument für die Umsetzung dar. Er dient der Stadt Freising dazu die definierten Ziele und Maßnahmen im Planungsalltag zu integrieren und damit die Klimaanpassung konkret voranzutreiben.
Neben dem Aktionsplan sollen ausgewählte Pilotprojekte in Freising prioritär umgesetzt werden, um die Klimaanpassung voranzutreiben und damit auch das KLAPS 50 umzusetzen. Hierfür geben die abgebildeten Eingriffsräume und -themen die Projekte vor, mit welchen Freising künftig starten sollte.
Weitere Infos zum Projekt gibt es hier:
Stadt Freising








